Downloads - Aktuelle Datensätze zur Bahnhofstr in Hagen 30.01.2003 ergänzt 24.03 und 31.03 und 05.04.2003
Hier können Sie die Geodaten zur Bahnhofstr in Hagen auf Klick gratis downloaden. (einige Dateien mit Zipit komprimiert)
Wir erhoffen uns davon einen Wettbewerb der Ideen, und das die Anwendung von Geodaten in die Stadtplanung eingeht.
Diese Daten sind nicht nur für Fachplaner interessant. Auch Hausbesitzer und Gewerbetreibende benötigen Informationen.
Die Lagegenauigkeit der Gebäude in den Datensätzen liegt in x,y und z bei + / - 10 cm. - Einfache Knotenkantenmodelle.
Das .dxf Format wird jeder kennen. - .PLA bedeutet "Planarchiv" und ist ein ArchiCAD Austauschformat für PC und Mac.
Die ersten 5 Basisdatensätze laufen bestimmt. Die 3 Entwurfsdatensätze wurden in ArchiCAD 7.0 EDU auf Apple erstellt.
Basisdaten im dxf Format Basisdatensatz Bahnhofstr - Für CAD Anwender im dxf. Format von Fa. Aerowest.de (360 KB)*
Basisdaten im .PLA Format (ArchiCAD) Basisdatensatz Bahnhofstr - Für ArchiCAD anwender im .PLA von Fa. Graphisoft.de (2,6 MB)*
Erweiterte Basisdaten im dxf Format      Datensatzerweiterung um Rathaus II und ZOB als .dxf von Fa. Aerowest.de (360 KB)*
Erweiterte Basisdaten im PLA Format (ArchiCAD)      Datensatzerweiterung um Rathaus II und ZOB als .PLA von Fa. Graphisoft.de (5,2 MB)*
Teil eines Orthophotos (Orig. 50 MB) Teil Orthophoto SIHK und DB 24 AG - Auflösung 1:500 - als .jpg von Fa. Aerowest.de (176 KB)*
Orthophoto des gesamten Planungsgebietes Bahnhofstr - Auflösung 1:500 als.tif von V. Goebel (23,1 MB)*
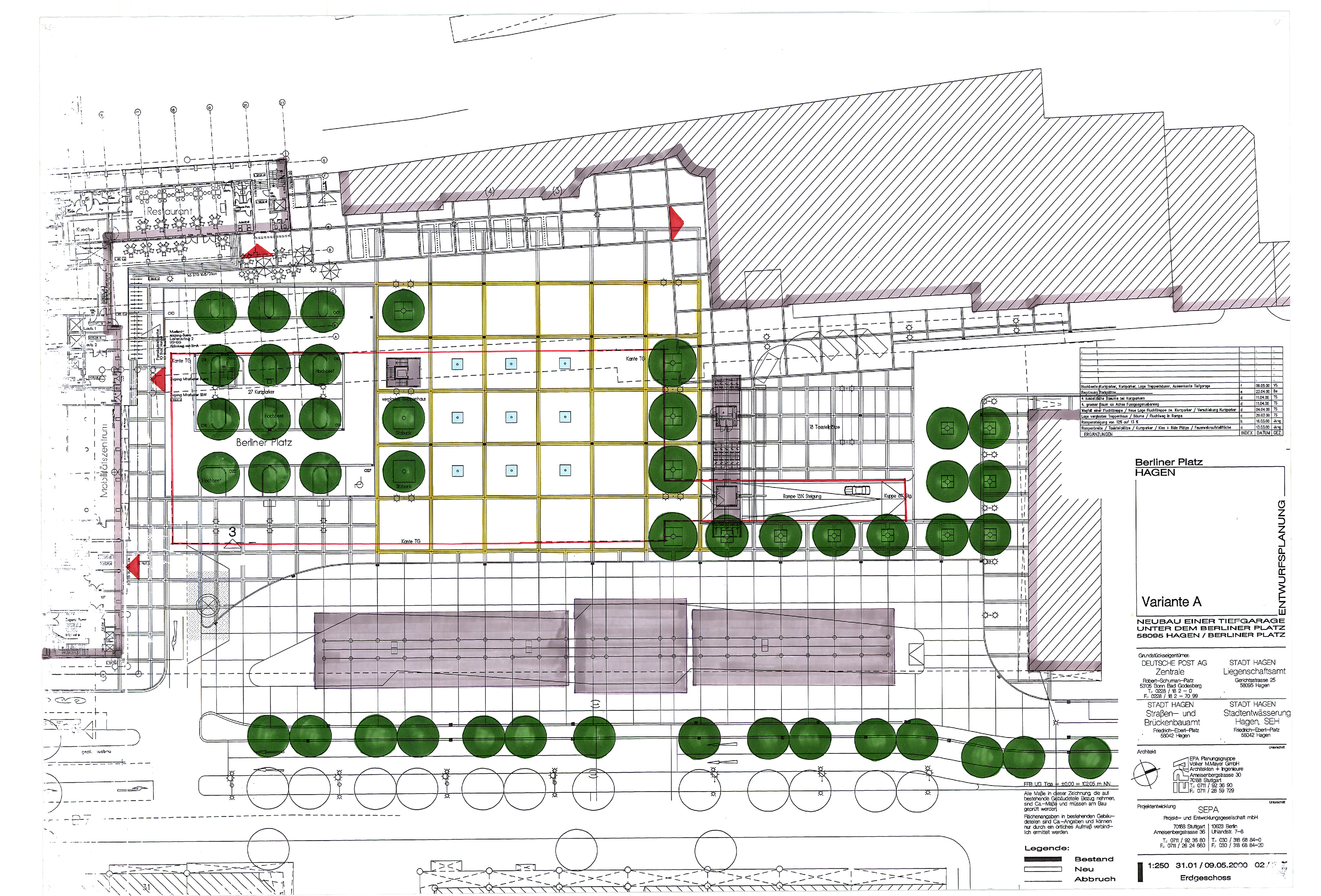
Zeichnung Berliner Platz mit Tiefgarage. - Öffentlich ein ausgehängter Plan der Stadt Hagen (1,9 MB)
Die Idee ist die einer partnerschaftlichen Zusammenarbeit, in der alle den gleichen Informationsstand haben.
Anbieter von Bauleistungen erhalten über die Datensätze die Informationen zu Maßen, Massen und Umgebung.
Wir danken der SIHK Hagen* für die Investition in diese Daten. Die Interessenvertretung der Wirtschaft handelt.
Zum Download bitte die Icons anklicken - bei Problemen bitte an volkergoebel@bahnhofstr-hagen.de wenden.
zum Entwurf Bahnhofsallee ...
Bahnhofstr Bestand      Erarbeiteter Datensatz Bestand Bahnhofstr - Für ArchiCAD Anwender im .PNE Format (19,4 MB)**
Entwurf Bahnhofsallee 1 mit axialem Fussgängerübergang      Entwurfsdatensatz Bahnhofs-Allee - Für ArchiCAD Anwender im .PNE Format (17,6 MB)**
Entwurf Bahnhofsallee 2 mit Diagonalkurvenübergang für Fussgänger      Entwurfsdatensatz Bahnhofs-Allee mit Kanal - Für ArchiCAD Anwender im .PNE Format (18,0 MB)**
Die Datensätze** sind vom Diplomanden Volker Goebel erstellt und enthalten den bisher erarbeiteten Stand.
In den 3 Datensätzen können Ihnen Bibliothekselemente und eingebaute Pixelbildinformationen fehlen - Email
Der Diplombearbeitungszeitraum endete am 24.03.03 - 9 veröffentlichten Datensätze mit Stand 24.03.03
Bitte gehen Sie vorsichtig mit der Bahnhofstrasse um. - Da leben Menschen. - Machen Sie gute Vorschläge.
Dies ist eine Einladung zum Wettbewerb der Ideen für einen besseren Städtebau von Dipl. Ing. Volker Goebel.